De SDH CARE 80 is een stijlvolle en ruime mantelzorgwoning van maar liefst 80 m², speciaal ontworpen voor comfortabel wonen door bijvoorbeeld een ouder echtpaar. In dit model zijn onze twee varianten vakantiewoningen samengebracht, aangevuld met verbeterde isolatie voor extra wooncomfort en energiezuinigheid.
Dankzij het hellende dak is de woning uitermate geschikt voor het plaatsen van zonnepanelen. Het voorste gedeelte met plat dak kan zowel links als rechts worden uitgevoerd, waardoor de woning flexibel aan te passen is aan de situatie op het perceel.

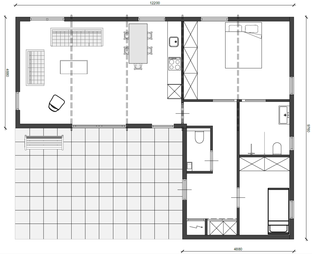
Indeling
De woning heeft een royale en doordachte indeling, waarbij optimaal gebruik is gemaakt van de beschikbare hoogtes. Minder frequent gebruikte ruimtes, zoals de badkamer, logeerkamer, entree en het toilet zijn ondergebracht in het gedeelte met platdak aan de voorzijde. Hierdoor ontstaat een prachtige, open en hoge leefruimte met woonkamer, keuken en een ruime tweepersoonsslaapkamer.
De grote ramen en deuren zorgen voor veel natuurlijke lichtinval en een prettige verbinding met buiten. Optioneel kan boven de tweepersoonsslaapkamer een zolder worden gerealiseerd, ideaal voor extra bergruimte of een andere invulling.
Het ingebouwde terras biedt beschutting tegen de wind en maakt het mogelijk om ook in de zomer comfortabel en ontspannen buiten te verblijven.

Download de brochure
Alles wat je moet weten over de SDH CARE 80 vind je in onderstaande brochure